FOTO: Alba Iulia, Cugirul și Aiudul, spionate ”la rece” de CIA! ”Ultimul răcnet” al serviciilor secrete din anii `50: cerneala invizibilă și schițele desenate de mână
Alba24.ro vă prezintă în premieră o serie de documente inedite, obținute dintr-o vastă arhivă electronică aparținând CIA. Documentele relevă faptul că agenții americani erau capabili să obțină foarte multe informații protejate de regimul comunist instalat de ruși, având atât informatori cât și agenți de teren, chiar aici, în Alba.
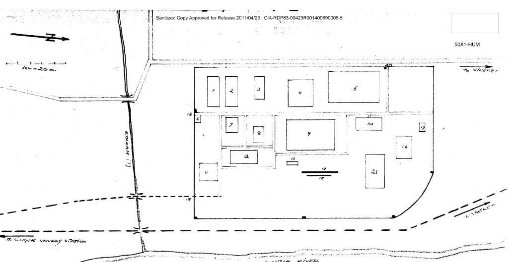
Amplasarea trupelor în Cetatea Alba Carolina sau dispunerea Uzinei de Armament de la Cugir (cu poligoanele și spațiille ”spciale”) erau desenate de mână de agenți. De asemenea, existau informații detaliate despre contractele de armament ale fabricii, despre transformarea liniilor de producție care produceau mașini de cusut pentru ruși, în linii de fabricație de armament.
Fabrica de la Cugir, cel mai spionat obiectiv din Alba
”Fabrica era înconjurată de un gard de doi metri de fier care are deasupra sârmă ghimpată. Trupele române narmate cu puști automate, păzeau din turnurile de observație (...) Un control foarte strict a fost exercitat atât asupra civililor cât și asupra personalului. Fiecare muncitor civil trebuia să aibă un card de identificare emis de fabrică, cu o ștampilă specială aplicată de conducerea administrativă a fabricii de armament. Același tip de control era aplicat și unităților care aparțineau de Ministerul Muncii. Muncitorii civili care intrau în fabrică prin poarta nr. 18 erau subiectul unui verificări stricte. Era un tren special care aducea muncitorii din satele vecine dimineața devreme și îi ducea înapoi seara târziu. Se lucrează 24 de ore în trei schimburi de câte opt ore” se arată într-un document dedicat Cugirului.
Americanii știau tot despre armata din Cetatea Alba Iulia
De exemplu, într-un document se precizează: ”În Alba Iulia, biroul de recrutare a trimis mai mult de 3.000 de ordine în perioada 20-26 aprilie 1950 (...) Aproximativ 2500 de rezerviști notificați au sosit la postul din Alba Iulia la 1 mai. S-a aflat că 476 dintre aceștia au fost desemnați pentru batalionul de construție – poduri, 600 la trupele de ingineri și restul la alte unități. Nici un rezervist nu a fost desemnat pentru Miliție”.
Pe lângă toate acestea, CIA mai era interesată de zăcămintele naturale din Alba. Informațiile erau obținute de peste tot. Se fotocopiau și se trimiteau la sediul central din SUA diferite lucrări scrise de specialiști, legate de acest subiect sau legate de descrierea unor fabrici. De exemplu, o lucrare despre Întreprinderea Metalurgică Aiud scrisa de Popa și Mihăilă.
”O echipă de tehnicieni româno-sovietică au descoperit un zăcământ important de gaz metan lângă Alba Iulia, Transilvania”, se precizează într-o notă adresată structurii centrale a CIA.
Rețeaua
La începutul războiului rece, CIA a reușit să dezvolte în România o rețea bine pusă la punct de agenți și informatori. Potrivit arhivelor, unii dintre aceștia erau plătiți lunar cu sume de la 50, 75, 80 până la 100 de dolari. Aceștia aveau nume conspirative dar fiecare avea o descriere în care era prezentat locul de muncă, abilitățile și studiile sale. Majoritatea erau naționaliști români nemulțumiți de influența și comportamentul Rusiei în România. O listă a acestor persoane este disponibilă însă aceștia nu sunt grupați pe regiuni ale țării și nu pot fi identificați.
Contactele între agenți și surse se stabileau printr-un sistem alambicat care implica mai multe țări, cu schimburi de scrisori redactate cu cerneală invizibilă și multe alte elemente demne de filmele cu spioni. Organizați, americanii au notat fiecare cheltuială pe care au făcut-o cu funcționarea sistemului de surse. De exemplu, din aceste documente aflăm că canalul clandestin de comunicare cu informatorii din Transilvania costa 40 de dolari pe lună.
- Schița Cetății
Urmariti Alba24.ro si pe Google News
Anunturi Alba24
Publica un anunt gratuitSTIREA TA — trimite foto/video la Alba24







Comentarii (0)