Ministerul Apărării Naționale investește peste un milion de euro în cazarma de la Șureanu. Lucrările propuse la cabana militară
Ministerul Apărării Naționale investește peste un milion de euro în cazarma de la Șureanu. Printre lucrările propuse se numără consolidarea și reabilitarea cabanei militare, realizarea unui nou corp pentru centrala termică, împrejmuirea cazarmei și realizarea rețelelor de utilități.
Ministerul Apărării - Unitatea Militară 02444 Sibiu a lansat pe 24 aprilie, în platforma SEAP, o licitație pentru lucrări de investiții în cazarma 3202 Șureanu - Sebeș.
Ministerul Apărării Naționale investește peste un milion de euro în cazarma de la Șureanu
Valoarea totală estimată a contractului este de 5.400.000 de lei, fără TVA.
Potrivit documentației, proiectul vizează consolidarea și reabilitarea cabanei militare, realizarea unui corp nou - centrală termică, demolarea unei anexe, realizarea unei împrejmuiri, rețele de utilități, gospodărie apă și alimentarea cu energie electrică a cazărmii.

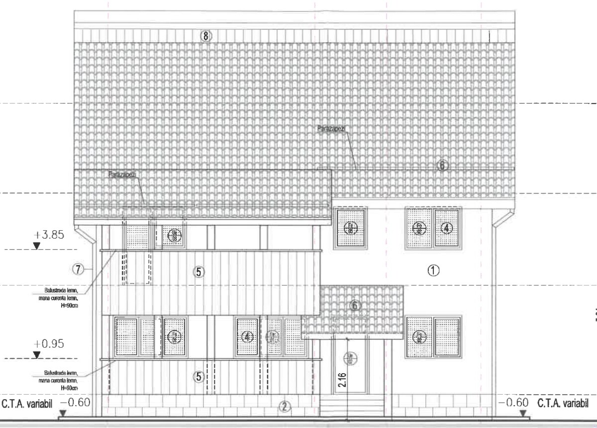
Structura funcțională propusă a cabanei militare este:
- Parter - bucătărie, hol, magazie alimente, grupuri sanitare, camere birouri, cameră veselă, casa scaăii + hol, sala de mese;
- Etaj 1 - camere, birouri, salon, casa scării + hol, grupuri sanitare;
- Mansardă - dormitor, hol, magazie.

Lucrările propuse
Finisajele propuse pentru interior:
- Pardoseli mozaic în bucatarie, camera veselă, hol, magazie alimente, casa scării + hol;
- Pardoseli din parchet laminat în camere birou;
- Pardoseli din gresie antiderapantă în grupurile sanitare;
- Pereții se vor finisa cu vopsele semilavabile și lavabile în holuri, camere, sala de mese;
- Pentru pereții băilor și parțial ai bucătăriei se vor folosi vopsele lavabile și placări ceramice;
- Pentru pereții sălii de mese și ai salonului se vor folosi vopsele lavabile și lambriu lemn;
- Plafoanele se vor finisa cu vopsele lavabile și semilavabile;
- La interior se vor monta uși celulare de lemn fonoizolante.

Finisajele propuse pentru exterior:
- Fațadele — termosistem din vata minerală bazaltică de 15 cm + tencuială decorativă de exterior;
- Se vor monta glafuri exterioare din tablă sau PVC culoare alb;
- Tâmplăriile exterioare se vor executa din PVC și metal alb, cu geam triplu termoizolant;
- Învelitoarea se va executa din tablă plană fălțuită

Alimentarea cu apă a obiectivului se va face dintr-un bazin colector. Sursa de apă caldă menajeră va fi Centrala termică. Apa potabilă rece necesară preparării apei calde menajere se va filtra și deduriza.
Centrala termică va funcționa pe peleți. Proiectul prevede și utilizarea unor panouri termo-solare ca sursă suplimentară de energie pentru prepararea apei calde menajere. Aceste panouri sunt de tip tuburi vidate şi vor contribui la reducerea consumului de combustibil prin captarea energiei solare.
Împrejmuirea exterioară se va realiza din panouri de plasă bordurată prinse de stâlpi din ţeavă rectangulară 40 x 60 x 3 mm, la interax de 2,50 metri (cu excepția zonelor unde din motive de geometrie a terenului, interaxul va fi diferit. Înălțimea gardului va fi de 1,8 m, iar lungimea de circa 490 metri.
Se va realiza o poartă metalică auto, batantă, în două canate (laţime 4 m) şi o poartă pietonală (laţime 1 m). La partea superioară a împrejmuirii propuse se va amplasa concertină de tip Nato.
Urmariti Alba24.ro si pe Google News
Anunturi Alba24
Publica un anunt gratuitSTIREA TA — trimite foto/video la Alba24







Comentarii (0)