Consiliul Județean Alba a lansat o nouă licitație pentru extinderea Unității de Primiri Urgențe (UPU) de la Spitalul din Alba Iulia. Cea de-a patra licitație pentru...
Consiliul Județean Alba caută constructor pentru extinderea Unității de Primiri Urgențe (UPU) de la Spitalul din Alba Iulia. Cea de-a treia licitație pentru execuția lucrărilor a...
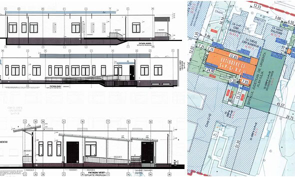
Costurile pentru realizarea extinderii și dotării Unității de Primiri Urgențe (UPU) a Spitalului Județean din Alba Iulia au crescut. După finalizarea proiectului tehnic, valoarea totală a...
Marți, la Sala de Ședințe din cadrul Prefecturii județului Brașov a avut loc seminarul regional de lansare a finanțărilor pentru modernizarea Unităților de Primiri Urgențe (UPU)...