Primarul din Sebeș, Dorin Nistor, a anunțat că lucrările la bazinul de înot sunt în plină desfășurare, iar lucrările ar urma să fie finalizate până în...
Bazinul Olimpic din Alba Iulia va fi închis pentru agrement, în perioada 21-23 martie. Aceștia au transmis că în perioada menționată se vor derula antrenamente și...
Pentru o săptămână, bazinul de înot din Alba Iulia va fi închis publicului. Este vorba despre o serie de reparații care vor avea loc la în...
Investiția pentru construirea unui bazin de înot la Sebeș a ajuns la faza de execuție a lucrărilor. În ședința din 23 mai, consilierii județeni votează actualizarea...
Lanțișoare de aur sau de argint, brățări, sau cercei. Sunt bijuteriile pe care cei care merg la bazinul din Alba Iulia le-au pierdut. Fie că le-au...
Primăria Alba Iulia contractează, prin intermediului Clubului Sportiv Municipal Unirea, lucrări de reparații în incinta Bazinului Olimpic. Acestea vizează instalația de tratare și recirculare a apei...
Bazinul Olimpic Alba Iulia va fi închis de miercuri, 4 octombrie 2023 și până la începutul lunii decembrie, în vederea desfășurării Campionatului național de senioare la...
Un număr de 150.000 de oameni au vizitat băile de la Ocna Mureș în cele 4 luni de la deschidere, a transmis primarul orașului, Silviu Vințeler....
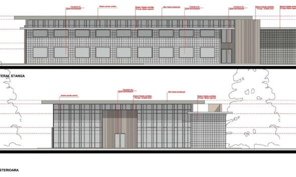
La Sebeș va începe în curând construcția unui bazin de înot acoperit, pe un teren aflat în Parcul Arini. Bazinul va avea dimensiunile de 25 x...
Primăria Alba Iulia, prin CSM Unirea, contractează lucrări de reparații necesare pentru Bazinul Olimpic din municipiu. Potrivit documentației prezentate, vor fi derulate lucrări de hidroizolație, înlocuire...
La doi ani de la descoperirea unei flinte de secol XVIII, în urma unor săpături arheologice la Alba Iulia, magistrații judecătoriei din oraș au emis un...
Bazinul Olimpic din Alba Iulia va fi închis în weekend-ul 9-11 iunie, pentru a găzdui Campionatul Național de Polo U13. Începând cu ziua de vineri, 9...
Este pericol de inundații pe mai multe râuri din Alba, dar și din alte localități din țară, au anunțat hidrologii. Mai exact, având în vedere situaţia...
Bazinul Olimpic din Alba Iulia va fi închis de joi, 25 mai până duminică, 28 mai, inclusiv. Reprezentanții primăriei anunță că în weekend se desfășoară o...
Cetățenii din Sebeș vor beneficia în curând de un bazin de înot . Acesta urmează să fie construit de către Consiliul Județean Alba, pe un teren...
Bazinul Olimpic din Alba Iulia va fi închis de vineri, 3 februarie până luni, 6 februarie, inclusiv. Reprezentanții primăriei anunță că în weekend se desfășoară o...
Reprezentanții Bazinului Olimpic din Alba Iulia au publicat marți, 10 ianuarie, noile tarife de acces pentru agrement. Potrivit HCL 590/27.12.2022, noile tarife de acces la Bazinul...
Reprezentanții Primăriei Alba Iulia au anunțat noi modificări în programul de funcționare al Bazinului Olimpic, după cele din noiembrie anul trecut. De la începutul anului 2023,...
Consilierii locali din Alba Iulia au aprobat marți noile tarife, valabile pentru anul 2023, pentru acces în Bazinul Olimpic. Valoarea acestora este majorată față de cele...
Bazinul Olimpic din municipiul Alba Iulia va fi închis în perioada 24 decembrie 2022 – 3 ianuarie 2023, au anunțat joi reprezentanții Primăriei. Potrivit acestora, în...