O nouă licitație pentru concesionarea unei clădiri din șanțurile Cetății Alba Carolina. Primăria Alba Iulia a lansat o nouă licitație pentru concesionarea unei clădiri din șanțurile...
Primăria Alba Iulia a anunțat organizarea unei licitații pentru închirierea unei locații pentru desfășurarea de activități de alimentație publică, aflată în șanțurile Cetății Alba Carolina, pe...
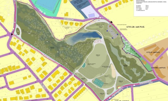
Parcul de Nord din Alba Iulia. Primăria Alba Iulia a lansat luni, 9 februarie, în platforma SEAP, a doua licitație pentru execuția lucrărilor de amenajare a...
Documentul în format .PDF poate fi studiat AICI.
Audi A6 impecabil, scos la licitație la prețul de 1.000 de euro, de Primăria Sibiu: Este vorba despre o mașină de protocol a fostului președintelui Klaus...
Reprezentanții Palatului Principilor din Alba Iulia au în vedere, în viitor, să scoată la licitație închirierea unor spații aflate în administrarea Centrului Cultural Palatul Principilor. Însă...
Documentul în format .PDF poate fi studiat AICI.
ANAF vinde, prin intermediul casei de licitații Artmark, mai multe tablouri valoroase din colecția fostului ministru de Finanțe, Darius Vâlcov. Acesta execută o pedeapsă de șase...
Primăria municipiului Aiud organizează în data 16 februarie 2026, la ora 12:00, în Piaţa Agroalimentară Dr. Constantin Hagea din Aiud, str. Iuliu Maniu, nr. 38, licitaţie...
Documentul în format .PDF poate fi studiat AICI.
Primăria municipiului Alba Iulia lansa în 2024 o licitație în SEAP în valoare de 33, 5 milioane de lei. Obiectul contractului scos la licitație era curățenia...
Casa de Cultură a Sindicatelor din Alba Iulia este executată silit, clădirea a fost scoasă la licitație, iar o instituție din Alba are banii bugetați pentru...
Dcumentul în format .PDF poate fi studiat AICI.
Primăria Aiud a lansat o licitație pentru delegarea gestiunii serviciului de transport public local de persoane pe raza municipiului, pentru următorii șase ani. Licitația a fost...
Documentul în format .PDF poate fi studiat AICI.
Primăria Alba Iulia organizează licitații publice pentru închirierea, respectiv concesionarea unor spații din Cetatea Alba Carolina. Ambele spații se află în șanțurile Cetății. Unul este locația...
Documentul în format .PDF poate fi studiat AICI.
Bijuterii din aur, scoase la licitație de o agenție a Ministerului Justiției. Agenția Națională de Administrare a Bunurilor Indisponibilizate (ANABI), agenția Ministerului Justiției care administrează bunurile...
Documentul în format .PDF poate fi studiat AICI.
Documentul în format .PDF poate fi studiat AICI.