FOTO: Pasarelă între două corpuri de clădire ale Liceului de Arte din Alba Iulia. Licitație pentru servicii de proiectare
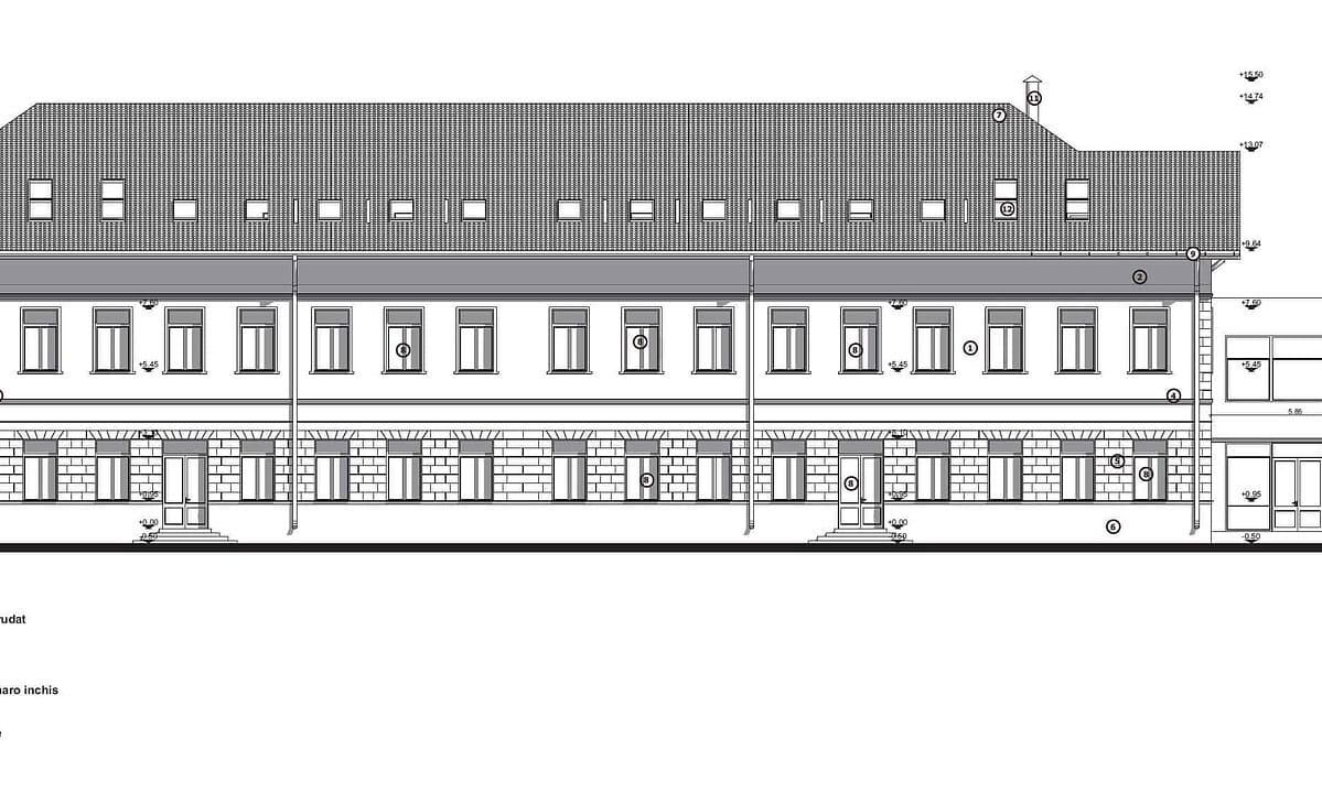
Două corpuri de clădire ale Liceului de Arte „Regina Maria” din Alba Iulia vor fi unite printr-o pasarelă cu închideri din tâmplărie cu geam termoizolant.
Primăria a lansat miercuri o licitație pentru servicii de proiectare pentru refuncționalizarea spațiului de învățământ. Se urmărește, printre altele, recompartimentarea unor spații, extinderea spațiilor tehnice și lucrări de conformare ISU.
Primăria Alba Iulia a lansat miercuri, 24 noiembrie, în Sistemul Electronic de Achiziții Publice (SEAP), o licitație pentru servicii de proiectare pentru refuncționalizarea spațiului de învățământ „Liceul de Arte Regina Maria - strada Avram Iancu nr. 7A, strada Călărașilor nr. 2.
Valoarea totală este estimată la 121.700 de lei, fără TVA.
Potrivit documentației, se propune legarea funcțională a corpului de clădire A (Subsol + Parter + Etaj 1 + Etaj 2 + Pod, aflat pe strada Avram Iancu nr. 7A) de corpul B (Subsol + Parter + Mansardă, aflat pe strada Călărași nr. 2), printr-o pasarelă de sticlă - la nivelul parterului și al etajului 1.
Se propune reamenajarea și recompartimentarea zonelor nefinisate din clădirea nouă, mansardarea anvelopei podului pentru realizarea de spații de învățământ suplimentare. Aici vor învăța copii de gimnaziu și liceu.
Refuncționalizarea spațiilor de învățământ urmează să fie realizată prin:
- unirea celor două corpuri de clădire prin intermediul unei pasarele de sticlă
- recompartimentări nestructurale cu amenajare spații noi de învățământ
- finalizare finisaje și instalații sanitare, termice și electrice pe corpul A
- realizarea instalații cu rol de limitare și stingere incendiu
- mansardare pod corp A pentru realizarea de săli de curs arte plastice
- amenajare în subsol corp A trei ateliere arte plastice
- realizare extindere pentru centrală termică corp B
De asemenea, se propune izolarea suplimentară a corpului B (clădirea din strada Călărașilor nr. 2)
Reamintim faptul că în anul 2017 Primăria Alba Iulia a achiziționat imobilul din strada Avram Iancu nr. 7A, colț cu strada Călărașilor (nefinalizat) care va fi destinat extinderii spațiului de învățământ pentru Liceul de Arte Regina Maria, urmând să asigure necesarul de spații în conformitate cu legislația în vigoare și cu respectarea măsurilor ISU.
Totodată se va avea în vedere posibilitatea comasării /refuncționalizării liceului menționat, pentru utilizarea cât mai eficientă a spațiului disponibil, cu realizarea de săli care să respecte suprafețele și cubajul de aer/elev.
Urmăriți știrile Alba24.ro și pe Google News.
Urmariti Alba24.ro si pe Google News
Anunturi Alba24
Publica un anunt gratuitSTIREA TA — trimite foto/video la Alba24







Comentarii (0)