Teren de sport acoperit și clădire de vestiare, la Școala Gimnazială „Mihail Kogălniceanu” din Sebeș. Serviciul Public de Administrarea Patrimoniului (SPAP) Sebeș a lansat pe 23 iunie,...
Proiect pentru construirea unei baze sportive cu teren de sport și clădire de vestiare, la intrarea în localitatea Tiur. Agenția Națională pentru Mediu și Arii Protejate a...
Cum va arăta Parcul de Nord din Alba Iulia. Primăria Alba Iulia a lansat pe 9 septembrie, în consultare publică, proiectul de elaborare PUD pentru amenajare...
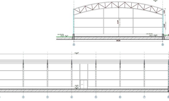
Noul teren de sport acoperit de la Liceul cu Program Sportiv din Alba Iulia prinde contur. Muncitorii au început montarea structurii metalice care va susține o...
Terenul de sport aflat în curtea Liceului cu Program Sportiv din Alba Iulia urmează să fie acoperit cu o structură metalică, pe care va fi montată...
Proiectul prin care se propunea amenajarea unei baze sportive chiar la intrarea în Cetatea Alba Carolina a fost retras de la vot, joi, în timpul ședinței...
În luna mai la Blaj încep lucrările la baza de agrement. Este al doilea mare proiect al Primăriei Blaj în colaborare cu Consiliul Județean Alba, după...
Ideea unei baze sportive și de agrement începe să prindă contur la Alba Iulia, în zona Bazinului Olimpic. Licitaţia pentru faza de proiect a acestei investiţii...
Tinerii care anul trecut în luna octombrie au participat la Salonul Auto Bucureşti cu maşina de teren „Zorro” au reuşit să o vândă. Cu fondurile obţinute...
Marţi, la Şcoala Generală nr. 6 „Ion Agârbiceanu” din Alba Iulia a fost inaugurat terenul de sport prevăzut cu iarbă artificială și împrejmuit cu gard și...
Lucrările de amenajare la curtea Școlii Generale nr. 6 „Ion Agârbiceanu” din Alba Iulia încep cel târziu în 15 octombrie. Va fi amenajat un teren de...
În Săptămâna „Școala Altfel” – „Să știi mai multe, să fii mai bun”, 1-5 aprilie, dedicată activităților extracuriculare pentru elevi și liceeni, Asociația RYMA lansează proiectul...