Nouă serie de înscrieri pentru locuri de parcare la Alba Iulia. Vizate, zonele Tudor Vladimirescu, Henri Coandă, Calea Moților
Luni, de la ora 8.00, începe o nouă serie de înscrieri pentru locuri de parcare noi, disponibile locuitorilor pentru închiriat cu abonament la Alba Iulia, potrivit calendarul făcut public de primărie. Spațiile sunt disponibile pentru zona străzilor Tudor Vladimirescu, Henri Coandă, Calea Moților.
Atribuirea se face numai în limita unui loc de parcare /apartament sau spațiu cu altă destinație în blocurile arondate, pe principiul ”primul venit, primul servit”, iar o persoană poate depune un singur dosar.
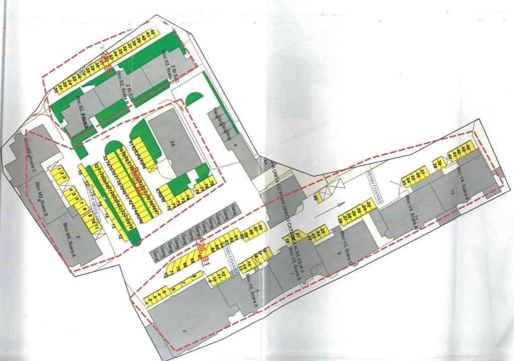
Potrivit calendarului înscrierilor, publicat de Primăria Alba Iulia, de luni, 8 iulie până marți, 16 iulie, se fac înscrieri pentru locurile de parcare din lotul P25, ce cuprinde străzile Tudor Vladimirescu, Henry Coandă, Calea Moților, cu următoarele blocuri arondate: Bl.V4A, Bl.V4B, Bl.V2ABC, Bl.M2 ABC, Bl.S2 ABC.
PENTRU PERSOANE FIZICE, dosarul cuprinde următoarele acte:
1. cerere tip
2. copie buletin identitate
3. copie legalizată pentru act de proprietate, contract de închiriere
4. copie certificat înmatriculare autoturism sau alt drept de folosință (dacă este cazul)
5. declaraţia din care să rezulte că nu deține un alt loc care permite parcarea mașinii (garaj, curte etc.).
PENTRU PERSOANE JURIDICE (spații cu altă destinație în blocurile arondate), dosarul cuprinde următoarele acte:
1. cerere tip
2. copie certificat de înmatriculare societate
3. copie legalizată pentru act de proprietate, contract de închiriere, contract de concesionare, contract de comodat
4. copie certificat de înmatriculare autoturism sau alt drept de folosință (dacă este cazul)
5. declaraţia din care să rezulte că nu deține un alt loc care permite parcarea mașinii (garaj, curte etc.)
6. copie carte de identitate reprezentant legal societate.
Reamintim că prima etapă de înscrieri s-a finalizat în iunie, oamenii așteptând ore întregi în soare pentru a putea prinde un loc de parcare, având în vedere că a fost aplicat principiul ”primul venit, primul servit”.
În perioada 22-30 iulie, vor fi înscrieri pentru lotul de locuri de parcare noi în Piața Maniu: str. Ardealului, str. Teilor, Piața Iuliu Maniu, având următoarele blocuri arondate: Bl.16B ABCD, Bl.A1 AB, Bl.A2, Bl.16 AB, BL.A2 AB, Bl.A1A Sc.B.
Urmariti Alba24.ro si pe Google News
Anunturi Alba24
Publica un anunt gratuitSTIREA TA — trimite foto/video la Alba24







Comentarii (0)