Primăria Întregalde caută constructor pentru extinderea și modernizarea sediului instituției. O nouă licitație, lansată în SEAP
Primăria comunei Întregalde caută un constructor pentru modernizarea și extinderea sediului instituției. Printr-o investiție de peste 410.000 de lei se urmărește, printre altele, reabilitarea interioară a unor încăperi, realizarea unei rampe de acces pentru persoanele cu handicap și a unei copertine.
Primăria comunei Întregalde a lansat în 12 august o nouă licitație în Sistemul Electronic de Achiziții Publice (SEAP) pentru execuția lucrărilor de modernizare și extindere a clădirii primăriei. Reamintim faptul că licitația anterioară, lansată în 22 iulie, a fost anulată automat deoarece la data limită de depunere a ofertelor nu au existat ofertanți.
Valoarea totală estimată a investiției este de 419.169,16 de lei, fără TVA.
Potrivit caietului de sarcini, proiectul constă în modernizarea și extinderea sediului Primăriei Întregalde, cu scopul creeri unui cadru plăcut pentru activitățile angajaților unității administrativ teritoriale.
„Scăderea continuă a numărului de locuitori ai comunei este un factor care semnalizează necesitatea unor investiții imediate în creșterea calității vieții locuitorilor, respectiv atragerea turiștilor. O astfel de investiție este și modernizarea și extinderea clădirii primăriei comunei Întregalde, loc care poate servi întâlnirilor locuitorilor, în special al celor mai tineri, dar și un loc de primire a turiștilor, fie că au sosit cu mașinile sau cu bicicletele, care le pot lăsa în siguranță în parcarea propusă, pentru a descoperi pe jos cadrul natural și construit al comunei”, se mai precizează în caietul de sarcini.
Principalele lucrări vizează:
- asigurarea respectării standardelor de confort, igienă și funcționalitate specifice instituțiilor publice administrative prin modernizare și extindere
- îmbunătățirea procesului de exploatare în bune condiții a clădirii prin echiparea cu dotări necesare unei bune desfășurări a activității de administrare a teritoriului comunei
- creșterea accesibilității persoanelor cu dizabilități la serviciile administrative prin realizarea unei rampe pentru accesul persoanelor cu handicap
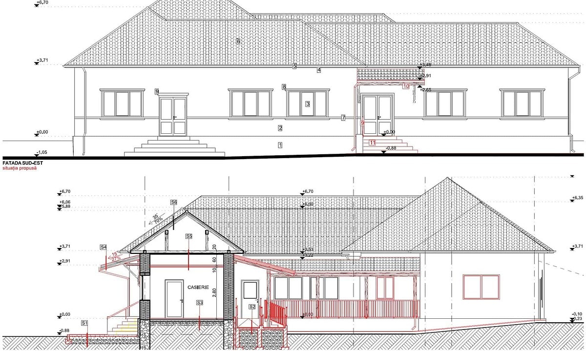
Astfel, se propune modernizarea și extinderea clădirii Primăriei și reabilitarea interioară a unor încăperi.
Accesul principal la fațada sud-estică a clădirii este alcătuit mai multe trepte care vor fi acoperite de o copertină nou propusă.
În ceea ce privește accesibilizarea clădirii pentru persoanele cu handicap locomotor, se propune amenajarea unei rampe, respectiv a unei terase de legătură între cele două zone ale clădirii și montarea unei copertine cu structura din stâlpi și grinzi din lemn, care va acoperi terasa propusă.
Proiectul mai vizează înlocuirea pardoselilor, modernizarea finisajelor interioare, modernizarea tâmplăriilor interioare, montarea unui tavan fals din gips-carton și înlocuirea integrală a instalațiilor electrice.
Urmariti Alba24.ro si pe Google News
Anunturi Alba24
Publica un anunt gratuitSTIREA TA — trimite foto/video la Alba24







Comentarii (0)