La Alba Iulia se va construi și amenaja un centru de zi dedicat persoanelor cu dizabilități. Contractul în valoare de 2.803.732,64 lei, fără TVA pentru serviciile...
Spațiul destinat centrului de zi pentru copii ”ReCreativ” Alba Iulia intră în reparații. Primăria pregătește documentația pentru obținerea finanțării de la minister și va asigura fonduri...
Centru de zi pentru copii, la Cugir. O clădire din orașul Cugir urmează să fie transformată în curând, printr-o investiție de peste 1,9 milioane de lei,...
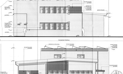
Centru de zi pentru persoane adulte cu dizabilități, la Alba Iulia. Direcția de Asistență Socială Alba Iulia își propune să dezvolte infrastructura socială destinată persoanelor adulte...
Centru de zi de asistență și recuperare pentru vârstnici, la Blaj. Primăria Blaj a achiziționat recent servicii de elaborare studiu de fezabilitate pentru proiect „Înființare Centru...
Investiția pentru un nou centru de zi dedicat persoanelor cu dizabilități la Alba Iulia este estimată la peste 5 milioane lei. Finanțarea vine din bani PNRR...
Primăria Aiud caută un partener privat pentru furnizarea de servicii de zi în cadrul Centrului de zi pentru persoane vârstnice din municipiu. Administrația locală din Aiud...
Centrul de zi pentru persoane vârstnice din Aiud a fost finalizat. Investiția a fost derulată în cadrul proiectului „Respect pentru bunicii comunității aiudene” și a inclus...
Centrul de zi pentru persoane vârstnice din Alba Iulia este aproape gata după lucrările de extindere și modernizare, lucrări care au durat aproape trei ani. Amplasat...
Centrul de zi pentru persoane cu handicap „Sfântul Meletie” selectează persoane care să beneficieze de serviciile oferite de specialiștii centrului social. Pot beneficia de aceste servicii...
Primăria Alba Iulia va susține financiar Centrul Educațional de zi „Sfântul Nicolae” din cadrul Asociației Filantropia Ortodoxă Alba Iulia. Suma propusă spre aprobare în Consiliul Local...
Copiii din cadrul Centrelor de zi „Sfânta Filofteia” din Silivaş şi „Sfântul Serafim de Sarov” din Războieni au avut parte de o tabără surpriză în vacanţa...
Copiii care beneficiază de serviciile Centrului de zi „Sfântul Serafim de Sarov” din Războieni au parte de „surprize de vacanţă” prin care micuţii sunt răsplătiţi pentru...
Marţi, Centrul de zi pentru vârstnici din Alba Iulia împlineşte 10 ani de existenţă, de activităţi dedicate vârstnicilor din municipiu. Centrul de zi pentru vârstnici are...
Prichindeii de la Centrul de Zi pentru copii antepreşcolari „Sfânta Irina” din Blaj au sărbătorit venirea primăverii printr-o serie de activităţi educative inedite. Sub genericul „Primăvara...
Sărbătoarea iubirii la români, Dragobetele, a fost marcată şi de persoanele de la Centrului de Zi pentru Vârstnici. Aceştia s-au bucurat de un bal mascat, diferite...
Persoanele defavorizate din Alba Iulia își vor primi, începând de luni, restul de alimente din pachetele cu ajutoare de la Uniunea Europeană. Mai precis, în octombrie,...
Micuţii de la Centrul de Zi pentru copii antepreşcolari „Sfânta Irina” din Blaj l-au primit zilele trecute pe Moş Crăciun. Aceştia l-au aşteptat pe Moş cu...
De Ziua Internaţională a Persoanelor Vârstnice, persoanele din centrele de zi din Războieni şi Silivaş vor fi sărbătorite de copiii de la „Sfântul Serafim de Sarov”...
Copiii de la mai multe case de timp familial și centre de zi din județele Alba și Mureș au oferit, marți, la Casa de Cultură a...