Centru de zi pentru copii, la Cugir. Investiție de peste 1,9 milioane de lei pentru reabilitarea și dotarea unei clădiri din oraș
Centru de zi pentru copii, la Cugir. O clădire din orașul Cugir urmează să fie transformată în curând, printr-o investiție de peste 1,9 milioane de lei, într-un Centru de zi pentru copii, proiect care urmărește prevenirea separării copiilor de familie.
Direcția de Asistență Socială Cugir a lansat pe 3 aprilie, în SEAP, o licitație pentru execuția de lucrări pentru obiectivul „Centru de zi pentru copii Cugir - Un pas cu SPAS”.
Valoarea totală estimată a contractului este de 1.912.772,69 lei, fără TVA. Investiția este finanțată prin Planul Național de Redresare și Reziliență - PNRR.
Centru de zi pentru copii, la Cugir
Potrivit documentației, proiectul „Centrul de zi pentru copii Cugir - Un pas cu SPAS” are drept scop prevenirea separării copilului de familie, prin asigurarea, pe timpul zilei, a unor activități de îngrijire, educaționale, de recreere-socializare, consiliere, dezvoltare a deprinderilor de viață independentă, orientare școlară și profesională pentru copii, cât și a unor activități de sprijin, consiliere, educare etc. pentru părinți.
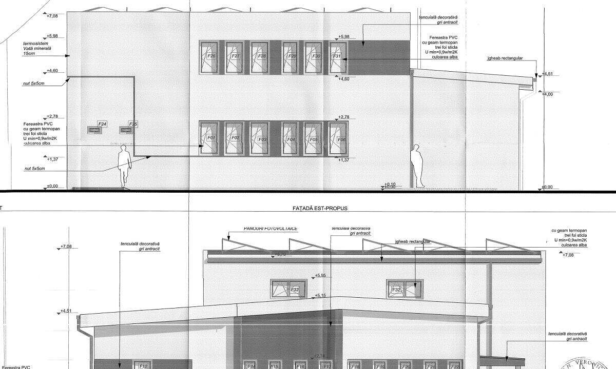
În scopul înființării centrului de zi pentru copii va fi reabilitată, modernizată și dotată clădirea aflată pe strada Ghe. Asachi, nr. 13 B, spațiu aflat în administrarea DAS Cugir din anul 2006, când a fost ultima dată reabilitată.
Clădirea necesită o amplă reabilitare și modernizare, începând cu înlocuirea acoperișului, reabilitare termică în scopul eficientizării energetice, realizării unui consum de energie aproape egal cu zero.
Lucrările propuse
Reabilitarea energetică a clădirii „Băii Sociale” din strada Gh. Asachi nr. 13 B va include:
Lucrări de reabilitare termică a elementelor de anvelopă a clădirii:
- Izolarea termică a fațadei partea vitrată:
- înlocuire tâmplărie exterioară existentă, inclusiv cea aferentă accesului în clădire cu tâmplărie termoizolantă cu performanță ridicată
- înlocuirea tâmplăriei interioare (uşi de acces si ferestre)
- Izolarea termica a fațadei - parte opacă:
- Termoizolarea planşeului peste ultimul nivel cu sisteme termoizolante;
- Izolarea termică a planşeului peste sol încălzit
- Izolarea termică a pereților care formează anvelopa clădirii
Instalarea unor sisteme alternative de producere a energiei electrice pentru consum propriu:
- Instalații cu panouri solare fotovoltaice
Lucrări de modernizare a instalațiilor de iluminat în clădire:
- Înlocuirea corpurilor de iluminat fluorescent și incandescent cu corpuri de iluminat cu eficiență energetică ridicată și durată mare de viată, inclusiv tehnologie LED
Alte tipuri de lucrări care conduc la eficientizarea energetică a clădirii:
- Repararea sistemului de colectare și evacuare a apelor meteorice la nivelul învelitoarei tip,
- Refacerea finisajelor interioare și zonelor de intervenție
Urmariti Alba24.ro si pe Google News
Anunturi Alba24
Publica un anunt gratuitSTIREA TA — trimite foto/video la Alba24







Comentarii (0)