FOTO Parcul de Nord din Alba Iulia: O nouă licitație pentru amenajarea acestuia, lansată de Primărie. Cum va arăta zona
Parcul de Nord din Alba Iulia. Primăria Alba Iulia a lansat luni, 9 februarie, în platforma SEAP, a doua licitație pentru execuția lucrărilor de amenajare a Parcului de Nord, în zona cartierelor Micești și Orizont.
Valoarea totală estimată a contractului este de 16.643.590,76 de lei, fără TVA. Investiția este finanțată prin Programul „Regiunea Centru” 2021 - 2027.
Potrivit documentației, termenul de execuție a lucrărilor este de 35 de luni.
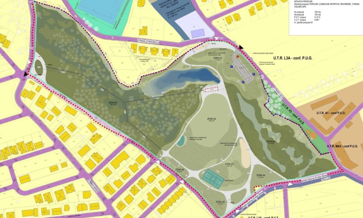
Obiectivul general al proiectul este constituirea primului parc urban conform standardelor, într-o zonă a orașului care a cunoscut o dezvoltare accelerată în ultimii 20 de ani, dar unde lipsesc dotările privind spațiile verzi de recreere și creșterea calității vieții în municipiul Alba Iulia, oraș verde și rezilient, pol de servicii ecosistemice - deschis locuitorilor, tinerilor, turiștilor și investitorilor.
Prima licitație, anulată
Prima licitație, lansată pe 21 iulie 2025, a fost anulată după ce au fost constatate încălcări ale prevederilor legale care au afectat procedura de atribuire, respectiv, pe parcursul procedurii de atribuire, au fost constate erori sau omisiuni. Mai exact, Primăria a trecut în documentație din eroare o stradă (strada Rânca), care nu făcea parte din obiectul contractului de finanțare, însă a făcut obiectul contractului de proiectare.
La procedura respectivă au fost depuse șase oferte, respectiv Urs Construct Alba, Extrabit, Florea Grup, Tobimar Construct, Elis Pavaje și Ro-Verde Landscapaping.
Parcul de Nord din Alba Iulia. Ce prevede proiectul
Potrivit proiectului, se vor executa următoarele lucrări:
- Amenajarea peisajeră a funcţiunilor de gradină publică cu toate dotările și echipamentele necesare (alei, locuri de odihnă, terenuri de joacă, locuri pentru activităţi sportive adecvate, iluminat public etc);
- Sistematizarea verticală a amplasamentului și realizarea unui sistem de alei pietonale;
- Realizarea căilor de acces pietonale în jurul construcțiilor și dotărilor din parc și accesului auto respectiv platforma de parcare;
- Realizarea lucrărilor de colectare și evacuare a apelor pluviale de pe alei, trotuare partea carosabilă și platformele de parcări către cei mai apropiați emisari;
- Realizarea unei zonificări funcţionale pentru echipamentele și construcţiile necesare;
- Rezolvarea accesibilităţii și a legăturilor cu spaţiile construite și plantate învecinate;
- Definirea unui nucleu în reţeaua verde a orașului pentru viitoarea dezvoltare pe direcţia Nord-Sud cu legătura spre zona bazinului olimpic și pe direcţie Est-Vest cu parcul dendrologic și malul râului Ampoi, laolaltă cu susţinerea funcţiei ecologice a zonei;
- Montarea unei rețele de stâlpi de iluminat și montarea camerelor de supraveghere video.
Parcul va fi echipat cu facilităţi moderne, inclusiv grupuri sanitare publice, iluminat adecvat pentru siguranță și confort pe timp de seară, camere de supraveghere, precum și mobilier urban de calitate.
Parcul de Nord din Alba Iulia. Pavilion multifuncțional
Pavilionul va avea dimensiunile la sol de 21,14 m x 4,9 m și o înălțime maximă de 6 metri.
Structura pavilionului va fi una de cadre de stâlpi de oțel şi grinzi de lemn încleiat. Fundaţiile vor fi din beton izolate. Finisajele exterioare cuprind suprafeţe galvanizate de oțel, elemente aparente din lemn încleiat, tratat cu soluţii pentru exterior pe bază de apă necolorate.
Alei și pasarele
Sunt două tipuri de alei propuse. În zona umedă se propun alei pe grătare zincate prefabricate. Acestea se vor fixa de o structură de stâlpi și grinzi din elemente din oțel zincate. Fundaţia va fi de tip înșurubat izolat.
Aleile cu suprafaţă nesigilată — sistem de pavaj cu agregate compactate - vor avea fundații din pietriș compactat. Aceasta este o infrastructură accesibilă pentru toate categoriile sociale, oferind un spaţiu comun pentru socializare și coeziune socială.
Parcul de Nord din Alba Iulia. Amenajări peisagistice
Amenajările peisagistice vor avea rolul de a crea diferite atmosfere și ambianţe care sa deservească viitorii utilizatori ai Parcului de Nord.
Se propune o viziune și un caracter cu o estetică naturalistă și baze sustenabile. Se urmărește accentuarea unui aspect naturalistic în dialog și echilibru atât cu patrimoniul antropic existent (cartierul Miceşti-Orizont), cât și cu cel natural viitor (coridoare ecologice, parcuri, dezvoltări urbane și infrastructuri), creșterea calităţii și diversităţii ecologice și peisagistice cu specii noi adecvate, accesibilizarea sitului și crearea de conexiuni la diverse scări urbane, crearea unei imagini unitare la nivelul circulaţiilor, introducerea unor zone diferenţiate funcţional (de relaxare, active, de joacă, etc.).
Din perspectiva vegetației, se vizează introducerea de specii noi, adaptate, diferenţiate în funcţie de condițiile de sol, umiditate și în funcţie de diversele atmosfere de peisaj existente sau de proiect, plantarea intensivă de vegetaţie arboricolă în vederea creșterii valorii peisagere, introducerea de materiale vegetal de talie medie și mică pentru potenjarea caracterului decorativ al peisajului, în vederea creșterii complexităţii texturilor care definesc acoperirea solului, de la zone înierbate până la pajiști înflorite, zone de perene și graminee, introducerea de accente compoziționale și texturale de plantare (în sistem grid versus liber, în pâlcuri).
Prin urmare, diversele zone de peisaj cu atmosfere diferite se materializează astfel:
Pădurea umedă
Situată în partea de vest a parcului Nord, această zonă semi-umedă se distinge prin microclimatul său umed, în care s-au dezvoltat spontan exemplare de arin (Alnus glutinosa), formând o pădure umedă semi-luminoasă, cu un farmec aparte. Arborii cresc într-o formă multitulpinală, conferind spaţiului o estetică unică și o valoare ecologică deosebită, remarcabilă atât la nivelul parcului, cât și al orașului. Toate exemplarele lemnoase și erbacee existente sunt păstrate pentru a conserva autenticitatea locului, iar compoziția vegetației este completată cu specii rezistente la inundări periodice, care aduc un plus de decor și diversitate ecologică.
Speciile selectate adaugă nu doar valoare estetică, ci și ecologică, oferind accente vizuale deosebite pe parcursul traseului din această zonă. Acestea formează mici pete omogene, în care fiecare specie își găsește locul în peisaj: Astilbe chinensis Vision in White, Astilbe chinensis Vision in Pink, Tiarella cordifolia, Matteuccia struthiopteris, Helleborus hybridus și Brunnera macrophylla Stained Glass. În părţile mai însorite, paleta vegetală este îmbogăţită cu specii iubitoare de lumină, precum Iris versicolor, Iris pseudacorus, Glyceria maxima și Filipendula rubra Venusta.
Această combinaţie de plante creează o tranziţie armonioasă între zonele semi-umbrite și cele însorite, punând în valoare caracteristicile unice ale locului şi oferind vizitatorilor o experiență imersivă, în care pot observa schimbările subtile ale vegetației odată cu anotimpurile.
În cadrul accesului vestic dinspre strada Gârda, se propun pete de vegetaţie arbustivă menite să încadreze și să anime intrarea, aducând textură și culoare spaţiului. Acestea sunt alcătuite din specii rezistente și adaptabile precum cornul (Cornus sericea Flaviramea), salba moale (Euonymus europaeus) și salcia purpurie (Salix purpurea Gracilis). Pe palierul superior de înălţime, arborii de stejar de baltă (Quercus palustris), mesteacăn alb (Betula utilis Jaquemontii) și păducel (Crataegus laevigata Paul's Scarlett) adaugă verticalitate și o prezenţă vizuală remarcabilă.
De-a lungul străzii Gârda, în spaţiile vegetale dispuse de o parte și de alta a axului drumului, se propun aliniamente de frasin comun (Fraxinus excelsior) care continuă compoziţia vegetativă până la intrarea sudică a parcului.
Această succesiune ordonată de frasini creează un ritm vizual de-a lungul drumului, conducând privirea spre intrarea în parc și contribuind la o integrare armonioasă a accesului în peisajul urban, accentuând totodată senzaţia de unitate.
Pădurea parc
Este situată pe zona actualului teren agricol și se compune din mai multe zone care reprezintă un sistem articulat de goluri și plinuri, de zone împădurite și pajiști care oferă legături și perspective încadrate în peisaj faţă de zonele naturale adiacente (zona stufizată, lacul propuse și pădurea umedă), fie faţă de țesutul urban adiacent. Aceste zone verzi acompaniază circulații pietonale și zone cu diverse funcțiuni, de spori, joacă, fitness și relaxare.
Acces în parc dinspre strada Episcop Emilian Birdaș
Pentru accesul dinspre strada Episcop Emilian Birdaș, se propun compoziţii vegetale în pete și fâșii, alcătuite din arbuști, plante perene și graminee, menite să ofere un decor atractiv pe tot parcursul anului — fie prin habitus, frunziș și flori, fie prin tijele uscate sau frunzele persistente ale unor specii.
Selecţia de vegetaţie include arbori autohtoni și arbuști meliferi, care aduc beneficii biodiversităţii urbane. Pentru unele specii arboricole au fost alese cultivare rezistente la boli și dăunători, fără organe vegetative periculoase (Spini) și fără fructe care pot păta. Arbuștii cu fructe sălbatice au fost adăugaţi pentru a sprijini biodiversitatea, oferind hrană păsărilor și altor vietăţi mici.
Insula centrală este compusă dintr-o pajiște multifuncţională și grupuri de arbuști din speciile: corn (Cornus sanguinea Winter Beauty), liliac pitic (Syringa meyerii Palibin), călin (Viburnum opulus Roseum) și salcie purpurie (Salix purpurea Gracilis). De o parte şi de alta a insulei, sunt propuse fâșii de arbuști din aceleași specii, având în faţă fâșii predominante de graminee ornamentale din Deschampsia caespitosa Goldschleier și Molinia caerulea Heidebraut. Pe alocuri, acestea sunt punctate cu accente colorate de plante perene, precum Verbena bonariensis Lollypop și Veronicastrum virginicum Cupid.
Pe palierul superior se regăsesc arbori amplasați în grupuri sau ca accenie solitare, din speciile: cireș ornamental (Prunus avium Plena), scoruș de munte (Sorbus aucuparia), tei cu frunza mică (Tila cordata), mesteacăn alb (Betula utilis Jaquemontii), frasin comun (Fraxinus excelsior) și jugastru argintiu (Acer saccharinum). Fundalul accesului, în zona insulei centrale, este conturat de tei cu frunza mică (Tila cordata), care are rol de ghidare și completează armonios compoziția naturală a peisajului.
Compoziții vegetale propuse în zonele de acces
În zonele de acces dinspre strada Rânca se propune amenajarea cu arbori şi arbuști. În zona accesului din vecinătatea pădurii umede, arborii sunt dispuși într-o manieră naturalistă, iar compoziţiile sunt alcătuite dintr-o diversitate de specii, precum cireșul omamental (Prunus avium Plena), scorușul de munte (Sorbus aucuparia), mesteacănul alb (Betula utilis Jaquemontii), păducelul (Crataegus laevigata Paul's Scarlett). Ca punct focal în această zonă de acces, se propune un carpen (Carpinus betulus), integrat într-un aliniament mixt cu stejarul de baltă (Quercus palustris), cu rol de unificare vizuală a traseului dintre acces și pavilionul dinspre nord.
Pe latura exterioară, de-a lungul străzii Gârda, pe fâșia verde care separă aleea parcului de stradă, se propune un aliniament de frasin (Fraxinus excelsior), iar pe latura interioară a parcului se propune un aliniament de tei cu frunză mare (Tilia platyphyllos).
În zona de acces adiacentă terenului de sport, se propun aliniamente de cireș decorativ (Prunus avium Plena), dispuse de-a lungul axului ce marchează intrarea secundară în parc, pentru a configura un cadru adecvat funcţiunilor sportive și recreative din acest spaţiu. Pe latura sudică a terenului, se vor amenaja insule de arbuști adaptate contextului local, incluzând salcie purpurie (Salix purpurea) și liliac pitic (Syringa meyerii Palibin).
Latura vestică, poziționată într-o zonă strategică a parcului, la intersecţia a trei alei principale, va beneficia de o compoziţie dinamică, cu o varietate de arbuști precum salcia purpurie (Salix purpurea), cornul (Cornus sericea Flaviramea) și lemnul câinesc (Ligustrum vulgare), însoţiţi de specii perene și graminee ornamentale iubitoare de soare: Nepeta x faassenii Cat's Pajamas, Gaura lindheimeri White Dove, Echinops ritro, Euphorbia characias Tasmanian Tiger, Veronicastrum virginicum Cupid, Molinia caerulea Heidebraut și Deschampsia caespitosa Goldschleier. Această structurare a vegetației contribuie la dinamismul vizual și la integrarea armonioasă a funcţiunilor recreative ale parcului.
În fundalul aliniamentului, spre strada Gârda, se propun grupuri de arbori din mai multe specii în vederea asigurării unei varietăţi cromatice vizuale, generând dinamism și curiozitate în peisajul parcului.
Parcul de Nord din Alba Iulia. Propunere de amenajare în zona lacului
În zona noului lac, se propune o arie extinsă de vegetaţie acvatică și peri-acvalică, care contribuie la integrarea estetică și funcțională a acestor corpuri de apă în peisajul general. Arborii plantați în jurul lacurilor, inclusiv plopul alb (Populus alba), mesteacăn (Betula utilis jaquemontii), salcia albă (Salix alba), şi stejarul de baltă (Quercus palustris), au fost selecționați pentru a răspunde atât nevoilor ecologice, cât și celor vizuale.
Arborii plantați în zona lacului generează un efect de oglindire artistic pe suprafața apei. Plopul alb contribuie cu reflecţii clare și verticalitate, în timp ce salcia albă creează un efect fluid şi ondulat, datorită ramurilor sale arcuite care se reflectă delicat. Stejarul de baltă adaugă un contrast solid și stabil, completând ansamblul vizual. Acest efect de oglindire nu doar că îmbogățește estetica peisajului, dar joacă și un rol important în armonizarea vizuală a vegetației cu corpul de apă și creează zone echilibrate din punct de vedere ecologic.
La nivelul palierului inferior, se propun fâșii de vegetaţie din specii adaptate pe paliere de umiditate a solului.
Astfel, pe palierul aflat în zona de albie, se propun specii rezistente condiţiilor de umiditate ridicată și apă stagnantă, din categoria speciilor hidrofile de soare: răchitan (Lythrum salicaria), cânepa codrului (Eupatorium cannabinum), papură (Typha minima), iris de baltă (Iris pseudacorus), stânjenel (Iris versicolor), roua cerului (Glyceria maxima), bulgări de soare (Rudbeckia nitida), floarea crețușca (Filipendula rubra Venusia), verbenă (Verbena bonariensis Lollypop), veronicastrum (Veronicastrum virginicum Cupid).
Pe palierul superior, de-a lungul aleii care străbate malul apei, se propune un sortiment de plante perene și graminee decorative, aliniate cu vegetaţia propusă in zona de pădure parc și platou, pentru consolidarea unităţii vizuale în peisaj: coada șoricelului (Achillea millefolium), euforbie (Euphorbia characias), floarea albinei (Gaura lindheimeri), iris (Iris barbata), menta pisicii (Nepeta X fassennii), echinacea (Echinacea purpurea), phlomis (Phlomis tuberosa), mâna doamnei (Verbascum nigrum), veronica (Veronica spicata), coadă de ponei (Stipa tenuissima), echinops (Echinops ritro), sedum (Sedum hybridus), ochiul boului (Aster divaricatus), crin de vară (Hemerocalis fulva), melica (Melica ciliata), schyzachirium (Schyzachirium scoparium), iarba fântânii (Panicum virgatum), sorghastrum (Sorghastrum nutans).
Parcul de Nord din Alba Iulia. Platoul
Această zonă se situează în nord-estul parcului, având rolul de a facilita accesul dinspre strada Stadionului. Se distinge printr-o suprafaţă relativ plană și ușor elevată, situată deasupra nivelului lacurilor planificate. Datorită poziționării sale strategice în raport cu viitorul parc, zona oferă caracteristica unui punct de observaţie panoramică. În cadrul acestei regiuni, sunt integrate diverse funcțiuni, inclusiv parcarea și zona de joacă, care răspund nevoilor de utilitate publică. De asemenea, această zonă servește ca un nod de conexiune între diferite componente ale parcului, realizând legături directe cu zona de pădure urbană, lacurile adiacente și zona stufizată, contribuind astfel la coeziunea și funcţionalitatea generală a ansamblului peisagistic.
Paleta vegetală din această zonă se aliniază cu vegetaţia din zona de pădure parc. Această alegere asigură continuitatea estetică și ecologică a peisajului, integrând armonios elementele naturale și amenajate, asigurând în acelaţi timp tranziţii fluide cu celelalte zone.
Pe palierul superior, zona parcării este înnobilată cu paltini de câmp (Acer platanoides), ale căror frunzișuri bogate aduc umbră și continuitate estetică între spaţiile verzi, unificând compoziţia întregului ansamblu. De-a lungul limitei nord-estice, grupuri de arbori din specii variate introduc un ritm natural, favorizând diversitatea ecologică și creând un cadru plăcut și dinamic. Aliniamentul de frasini (Fraxinus excelsior) întâmpină vizitatorii la intrarea în parc, iar ulmii (Ulmus Rebona) aduc accente grațioase în pajiște, oferind umbră reconfortantă.
În zona parcări, pe palierul intermediar, un gard viu ecologic, compus din păducel (Crataegus monogyna), laur englezesc (Prunus laurocerasus), lemn câinesc (Ligustrum vulgare) și măceș (Rosa canina), separă vizual zona recreativă de cea de parcare, încurajând biodiversitatea și creând un fundal natural propice activităților de pe platou.
Pe limita sudică a platoului, o fâșie de arbuști, menţinuţi la o înălțime de 70-100 cm, preia rolul de balustradă naturală, protejând utilizatorii de taluzul abrupt. Această barieră este compusă din corn (Cornus sanguinea Winter Beauty, Cornus sericea Flaviramea) și salcie purpurie (Salix purpurea), care aduc un plus de textură și interes vizual.
La accesul principal, o compoziţie vibrantă de arbuști și plante perene esie creată din specii ca salbă moale (Euonymus europaeus), salcie purpurie (Salix purpurea) și corn (Cornus sanguinea Winter Beauty), acompaniate de graminee și flori perene care îmbogăţesc peisajul cu culoare și structură pe tot parcursul anului: Knautia macedonica, Echinops ritro, Phlomis tuberosa, Echinacea White Swan, Echinacea Magnus, Molinia caerulea, Stipa tenuissima Ponytails, Gaura lindheimeri White Dove, Verbena bonariensis Lollypop, Achillea millefolium Terracota, Aster ericoides Pink Cloud, Euphorbia characias Tasmanian Tiger, și Nepeta fassennii Cats Pajamas. Aceste specii contribuie la peisajul vibrant și ecologic, conferind locului o atmosferă naturală și dinamică, atractivă pe tot parcursul anului.
Versanții
În contextul amenajării parcului, versanţii reprezintă zonele cu pante accentuate care impun o atenţie specială din cauza vizibilităţii lor ridicate de pe aleile principale şi din alte sectoare ale parcului. Aceste zone, fiind situate pe pante abrupte, sunt adesea expuse privirii din diferite unghiuri și perspective, ceea ce le conferă un impact vizual semnificativ asupra peisajului general. În acest sens, se propune consolidarea acestora cu pajiști cu flori care conferă stabilitate și valenţe estetice ridicate.
Pajiști cosite diferențiat
În cadrul zonelor verzi, gestionarea ecologică a vegetației la nivelul stratului inferior de înălțime reprezintă o practică menită să susţină și să amplifice biodiversitatea, sănătatea solului și funcționalitatea ecosistemelor. La nivel comunitar, pajiștile cosite diferențiat nu doar că îmbogăţesc peisajul prin diversitatea lor estetică, dar oferă și refugii liniștite, contribuind la conservarea patrimoniului natural. Aceste pajiști devin, de asemenea, spații educaţionale valoroase, în care vizitatorii pot dobândi cunoștințe despre importanța biodiversităţii și despre echilibrul dintre activităţile umane și natură.
Astfel, parcul nu servește doar ca un loc de recreere, ci și ca un exemplu de sustenabilitate pentru comunitatea locală, demonstrând cum o gestionare atentă a resurselor naturale poate îmbunătăţi semnificativ calitatea vieţii. Pajiștile, compuse dintr-o varietate de specii native, furnizează o gamă largă de servicii ecosistemice, inclusiv promovarea biodiversităţii, reglarea microclimatului, controlul eroziunii, filtrarea apei și menținerea unui regim hidrologic echilibrat.
În contextul organizării unor evenimente de mare amploare, pajiştile pot fi cosite strategic pentru a facilita accesul și a crea spaţii adecvate desfășurării activităților. După încheierea evenimentelor, regenerarea naturală a speciilor florale, lăsate în mare parte necosite, asigură menținerea biodiversităţii și oferă în continuare vizitatorilor posibilitatea de a se bucura de peisajul înflorit și de valorile estetice ale pajiștii.
Urmariti Alba24.ro si pe Google News
Anunturi Alba24
Publica un anunt gratuitSTIREA TA — trimite foto/video la Alba24







Comentarii (2)