Aiud
Investiție de 9 milioane de lei la Penitenciarul Aiud. Reabilitarea unei clădiri și amenajarea unui punct de primire deținuți
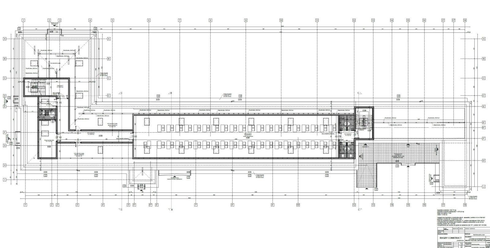
Investiție de 9 milioane de lei la Penitenciarul Aiud. O clădire din cadrul Penitenciarului din Aiud urmeză să fie reabilitată și modernizată, în vederea amenajării unui punct de primire deținuți. Totodată urmeză să fie modernizate mai multe birouri și se va amenaja o mansardă unde este prevăzută o sală de ședințe.
Penitenciarul Aiud a lansat pe 30 decembrie, în platforma SEAP, o licitație pentru lucrări de intervenții pentru obiectivul de investiții „Post Control II-III”.
Valoarea totală estimată a investiției este de 9.026.685,11 lei, fără TVA.
Potrivit documentației, proiectul urmărește amenajarea unui punct de primire detinuți conform reglementărilor în vigoare, modernizarea birourilor destinate serviciului regim penitenciar și a șefului de tură și etajarea clădirii în vederea amenajării unei mansarde cu destinația de sală de ședințe.

În prezent clădirea are formă poligonală (în „L”), cu regimul de înălțime Parter, fiind constituită din trei tronsoane alipite. Clădirea are suprafața construită la sol de 853,75 mp și a avut inițiaș destinația de spații de deținere.
Clădirea prezintă un grad avansat de uzură, ca urmare a exploatării îndelungate, continuarea utilizării acesteia devenind periculoasă ori ineficientă din punct de vedere economic și al scopului pentru care a fost creată.
Având în vedere faptul că în incinta Penitenciarului Aiud nu există un Punct de Primire Deținuți conform cu O.M.J. 4800/C/2018 pentru aprobarea Regulamentului privind siguranţa locurilor de deţinere din subordinea Administraţiei Naţionale a Penitenciarelor, Penitenciarul Aiud dorește prin acest obiectiv realizarea unui punct de primire deținuți adecvat cerințelor legislative.
Ce prevede proiectul
La interior, clădirea se va moderniza după implementarea măsurilor de consolidare și se vor folosii materiale noi, moderne şi rezistente la uzură. Se vor realiza şi noi recompartimentări, din materiale uşoare, pentru a creea o bună funcţionare.
La parter urmează să fie amenajate, printre altele, săli de așteptare, cabinet medical, frizerie, sală fotografiere - amprentare, sală identificare - verificare documente, sală de percheziție, magazie bagaje și birouri.
La mansardă se va amenaja o sală de ședințe cu o capacitate de 130 de locuri.

La exterior, clădirea se va reabilita din punct de vedere termic, prin aplicarea măsurilor pentru eficienţă energetică.
Urmăriți Alba24.ro și pe Google News